深圳中廣核多功能廳是一個改造的大型的室內場館,建筑平面面積約為 220 ㎡,容積約為 1430m3,觀眾廳的平面體形為方形,四周墻面為為平行墻面。
該多功能廳的主要作用是會議室會議、觀看視頻、頒獎,因此要求室內語言清晰,聲場均勻,無顫動回聲、多重回聲等聲學缺陷?;祉憰r間長,則聲音渾濁,無法滿足開會功能的使用;混響時間過短,則使吸聲過量,沒有足夠的響度。
設計依據:
《劇場、電影院和多用途廳堂建筑聲學設計規范》GB/T50356-2005;
《廳堂混響時間測量規范》GBJ76-1984;
《民用建筑設計通則》GB50352-2005;
《聲學混響室吸聲測量》GB/T 20247-2006;
《室內裝飾工程質量規范》 QB1838-93;
《建筑內部裝修設計防火規范》GB50222-1995;
甲方提出的功能要求及設計院提供的建筑、裝飾圖紙等資料。
觀眾廳各頻率混響時間相對于500~1000Hz的比值
| 頻率(Hz) | 125 | 250 | 2000 | 4000 |
| 混響時間比值 | 1.0~1.3 | 1.0~1.5 | 0.9~1.0 | 0.8~1.0 |
觀眾廳各頻率混響時間設計指標值
| 頻率/Hz | 125 | 250 | 500 | 1000 | 2000 | 4000 |
| 混響時間 T60/s | 1.0~1.3 | 1.0~1.15 | 1.0 | 1.0 | 1.0~1.3 | 1.0~1.15 |
說明:設計允許偏差±10%
設計方案:為了合理控制觀眾廳內的混響時間、保持現裝飾設計效果,消除建筑固有的聲缺陷及提高觀眾席的聲場均勻度,應在觀眾廳內綜合布置各種聲學裝飾吸音材料,嚴格控制這些吸音材料的造型、規格、安裝角度及安裝方法。

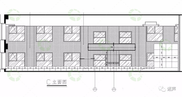
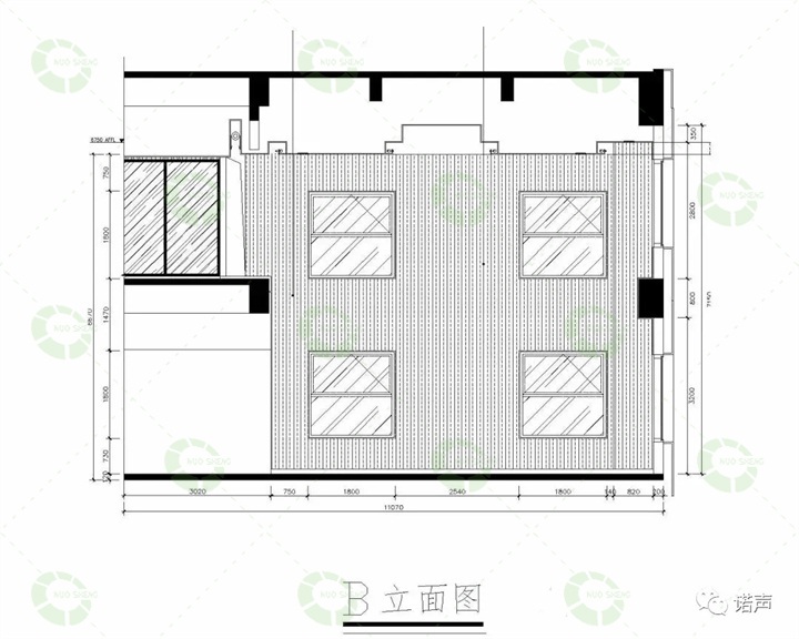
立體布置圖1

立體布置圖2

立體布置圖3
施工完成后效果:
1、施工完成后該功能廳內聲環境及場內環境適宜,其滿場混響時間為:
| 空間名稱 | 項目 | 倍頻帶中心頻率(Hz) | |||||
| 125 | 250 | 500 | 1000 | 2000 | 2000 | ||
| 廳堂 | 預計混響時間 T60(s)≤ |
1.0~1.3 | 1.0~1.15 | 1.0 | 1.0 | 1.0~1.3 | 1.0~1.15 |
2、場內聽音較清晰,具有良好的音色,無聲染色等音質缺陷。
3、吸音材料滿足場所防火等級要求,且環保無污染。
4、裝飾美觀大方,視覺感受舒適良好。

此次深圳中廣核多功能廳吸音工程最終順利成功驗收,可謂是給了諾聲聲學一個巨大的鼓舞,諾聲聲學將繼續奮斗在中國聲學行業,在聲學領域上更上一層樓。
佛山諾聲聲學裝飾材料有限公司是一家致力于建筑聲學工程設計及咨詢、聲學材料、隔音材料、吸音材料的技術開發及銷售為一體的企業。為保證產品質量,工廠引進德國進口機器,進行加工作業,從產品設計研發到生產制作,均獨立完成。用合理的價格為客戶提供各類聲學材料及聲學方案。
歡迎來電咨詢聲學設計:0757-88048577